Architektenhaus am Stausee

 Ich habe die Datenschutzerklärung zur Kenntnis genommen und bin damit einverstanden, dass meine Daten zur Bearbeitung meiner Anfrage sowie zur Kontaktaufnahme gespeichert und verarbeitet werden.

Objektdetails

Objekt-ID:3715
Objektart:Einfamilienhaus
Lage:02625 Bautzen
Baujahr:2024
Wohnfläche ca.:227,00 m²
Grundstücksfläche ca.:1.150,00 m²
Zimmer:5
Käuferprovision:2,98% inkl. gesetzl. MwSt.
Kaufpreis:550.000,00 €
Zustand:Rohbau
Schlafzimmer:3
Badezimmer:1
Gebäudeart:Neubau
Heizungsart:Zentralheizung
Balkon / Terrasse:1
Balkon-/Terrassenfläche ca.:15,11 m²
Ausstattung:Gehoben

Objektbeschreibung

Zum Verkauf steht ein Architektenhaus in schöner Lage am Bautzner Stausee. Das Haus besticht durch seine klare äußere Gestaltung und moderne lichtdurchflutete Innenwelt.

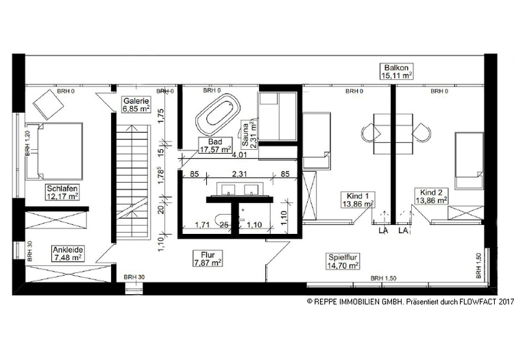
Das intelligente und moderne Wohnkonzept entspricht aktuellen Ansprüchen an ein modernes Familienheim. Im Erdgeschoss befinden sich neben Gäste-WC, Arbeitszimmer, Lagerraum und Hauswirtschaftsraum als Highlight ein großer Wohn- und Essbereich mit offener Küche. Im Obergeschoss befinden sich drei Schlafzimmer, ein großes Bad mit geplanter freistehender Badewanne und Sauna. Abgerundet wird dies mit dem Blick aus allen Räumen auf den Stausee Bautzen. Das gesamte Gebäude ist als Smart Home konzipiert und die Steuerung der einzelnen Komponenten erfolgt über das bereits angeschlossene BUS-System. Aktuell befindet sich das Haus im Innenausbau. Die Erwerber bekommen hier die Möglichkeit die Ausstattung selbst zu bestimmen, oder bereits geplante Installationen zu übernehmen. So sind nach aktuellem Stand die Sanitärinstallationen noch wählbar, ebenso die Fußbodenbeläge, Wand- und Deckengestaltung, sowie die Haustreppe. Verkauft wird die Immobilie im aktuellen baulichen Zustand.

Lage

Die Liegenschaft befindet sich in Oehna, ein nördlich gelgener Stadtteil von Bautzen. Oehna ist seit 1245 historisch belegt und war Herrensitz und Rittergut von Rainoldus und Cunemundus de Eunowe. Im Jahre 1972 erfolgte ein Teilortsabbruch zu Gunsten der Talsperre. Oehna liegt daher direkt am Südufer der Bautzener Talsperre mit eigener Anlegestelle für Seesportler. Eine Bushaltestelle mit allen wichtigen städtischen und außerstädtischen Verbindungen befindet sich in unmittelbarer Nähe. Mit der Buslinie 16 erreicht man den Busbahnhof Bautzen in ca. 25 Minuten. Die nächstgelegene Autobahnanschlussstelle der A4 Dresden-Görlitz ist in unter fünf Minuten mit dem PKW zu erreichen. Geschäfte des täglichen Bedarfs, Grund- und Weiterführende Schulen, Ärzte und Erholungsmöglichkeiten befinden sich in Bautzen und sind auch mit dem Fahrrad bequem zu erreichen.

Ausstattung

Die Ausstattung ist im weitesten Sinne noch wählbar. Bautechnische und architektonische Komponenten sind bereits installiert, vorbereitet oder fest integriert. Der Estrich ist gegossen und die Fußbodenheizung verlegt; es fehlt lediglich der Fußbodenbelag. Die Raumhöhen im Erdgeschoss inklusive Fußbodenbelag betragen ca. 2,6 m und im Obergeschoss ca. 2,4 m.


Die Elektrotechnik im gesamten Gebäude ist fertiggestellt. Die Beleuchtung ist überwiegend über LED-Deckenspots vorgesehen; sowohl die Verkabelung als auch die Deckenspots sind bereits installiert. Das Bussystem ist vollständig eingebaut und die Aktoren sind angeschlossen.


Die Beheizung des Gebäudes erfolgt über eine moderne BOSCH Luft-/Wasser-Wärmepumpe in Kombination mit einer Fußbodenheizung. Ergänzend sind ein Wärmepumpenspeicher sowie ein Pufferspeicher installiert. Der berechnete Primärenergiebedarf beträgt 76,66 kWh/m².


Die Verschattung der Innenräume erfolgt über Raffstores. Die Fenster sind dreifach isolierverglast und teilweise außen verspiegelt ausgeführt. Die mit Lärchenholz verkleidete, hinterlüftete Außenfassade sowie die Installation der Raffstores sind von den Erwerbern noch fertigzustellen. Der Erdgeschossbereich der Außenfassade ist für eine Verkleidung mit ETERNIT-Faserzementschindeln vorgesehen.


In den Bädern ist bereits eine hochwertige Sanitärausstattung vorgesehen, unter anderem Armaturen und Brausen in schwarz matter Ausführung namhafter Hersteller, diese Ausstattung kann übernommen werden.
Ein Kaminofen mit Edelstahl-Außenschornstein kann im Wohn- und Essbereich an der Ostseite realisiert werden.

Sonstige Angaben

Baujahr: 2024
Heizungsart: Wärmepumpe

Auflistung der verbauten Gebäudetechnik:
- BOSCH Luft/-Wasser-Wärmepumpe (Compress CS3400iAWS 8 OR-S, Split, einphasig, R32)
- BOSCH Luft/-Wasser-Wärmepumpe (Compress CS3400iAWS 10 E, Inneneinheit monoenerg.)
- BOSCH Wärmepumpenspeicher (HR 300)
- BOSCH Pufferspeicher (BST 50 Ehp 540x530, zylindrisch, Nutzinhalt 50 L)

Vorhandene Ausstattung der Bäder:
- Kludi BOZZ Wand - Waschtischmischer UP mit Fertigteilset (schwarz matt)
- Kludi Nova Fonte Thermostatarmatur für 2 Verbraucher (schwarz matt)
- Kludi Nova Fonte Brausegarnitur mit Wandhalter (schwarz matt)
- HansGrohe Raindance S240 PowderRain Kopfbrause (schwarz matt)
- Kludi BOZZ Wannenarmatur freistehend (schwarz matt)

Der Verkauf findet freihändig statt. Wir handeln im direkten Auftrag des Eigentümers. Alle Angaben, Abmessungen, Darstellungen und Preisangaben sind nach bestem Wissen und basieren ausschließlich auf Informationen, die uns von unserem Auftraggeber bzw. Dritten übermittelt wurden. Für die Richtigkeit, Vollständigkeit und Aktualität der Angaben übernehmen wir keine Gewähr. Irrtum und Zwischenverkauf bleiben vorbehalten.
Für das Haus liegt derzeit noch kein Energieausweis vor. Dieser ist bereits beauftragt und wird zeitnah nachgereicht werden.

Der Käufer zahlt im Erfolgsfall an die Firma REPPE IMMOBILIEN GMBH die in den Objektdetails aufgeführte Maklerprovision. Die Provision errechnet sich aus dem beurkundeten Kaufpreis. Dieses Exposé ist eine Vorinformation, als Rechtsgrundlage gilt allein der notariell abgeschlossene Kaufvertrag.

REPPE IMMOBILIEN GMBH
Weigangstraße 1 I 02625 Bautzen
T: +49 (0) 3591 53 26 26
F: +49 (0) 3591 53 25 46
M: info@reppe-immobilien.de
Internet: www.reppe-immobilien.de
Geschäftsführer: Frank Reppe
Amtsgericht Dresden HRB 16388

Wir bitten um Verständnis, dass wir nur vollständige, schriftliche Anfragen (E-Mail, Fax, Brief) mit Namen, Anschrift und Telefonnummer beantworten können. Das Objekt kann nach vorheriger Absprache kurzfristig besichtigt werden.