Wohn -und Gewerbeobjekt in Pulsnitz

 Ich habe die Datenschutzerklärung zur Kenntnis genommen und bin damit einverstanden, dass meine Daten zur Bearbeitung meiner Anfrage sowie zur Kontaktaufnahme gespeichert und verarbeitet werden.

Objektdetails

Objekt-ID:3919
Objektart:Einfamilienhaus
Lage:01896 Pulsnitz
Wohnfläche ca.:240,00 m²
Grundstücksfläche ca.:1.760,00 m²
Vermietbare Fläche ca.:477,00 m²
Gewerbefläche ca.:237,00 m²
Zimmer:9
Käuferprovision:3,57 % zzgl. gesetzl. MwSt.
Kaufpreis:295.000,00 €

Objektbeschreibung

Zum Verkauf steht ein Wohn- und Gewerbeobjekt in Pulsnitz. Der Gebäudekomplex beinhaltet ein Wohnhaus, zwei gewerbliche Anbauten und ein freistehendes Garagengebäude. Das voll unterkellerte Wohnhaus wurde ca. 1912 errichtet und verfügt über eine Wohnung im Hochparterre mit ca. 52 m² und eine Etagenwohnung im Obergeschoß mit ca. 188 m² Wohnfläche sowie einer 34 m² großen Terrasse. Die Obergeschoßwohnung liegt teilweise in einem der gewerblichen Anbauten.

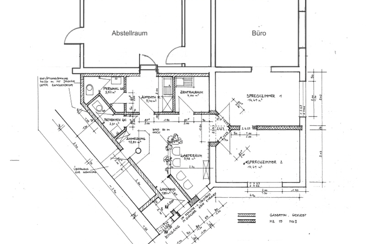
Im gewerblichen Erdgeschoß befindet sich eine ehemalige Zahnarztpraxis mit ca. 106 m² Fläche, welche 1993 errichtet und nach 2000 erweitert wurde. Diese Einheit hat einen eigenen Außenzugang. Weiterhin befindet sich mit internem Zugang ein ehemaliges Zahntechnik Labor mit ca. 60 m² Nutzfläche im rückwärtigen Anbau. Ein Garagenanbau mit 3 PKW Stellplätzen und eine separate Garage mit 2 PKW Stellplätzen sind ebenfalls vorhanden. Das Wohnhaus ist vollständig unterkellert.

Aus unserer Sicht eignet sich das Objekt insbesondere für eine Kombination aus Wohnen im Haupthaus und einer gewerblicher Nutzung in den rückwärtigen Bereichen. Die ehemalige Zahnarztpraxis kann dabei als Bürobereich ohne wesentliche Umbauten genutzt werden. In dem sich anschließenden Gewerbebau lässt sich ein Lager oder eine Werkstatt einrichten. Ob hierzu das ehemalige Labor Bestand hat bleibt abzuwarten.

Lage

Das Grundstück befindet sich an der Ausfallstraße nach Kamenz in einem Mischgebiet. Das direkte Umfeld ist geprägt von einer gewerblichen Nutzung und Wohngebäuden. Mehrere Supermärkte und der Bahnhof sind nur wenige Gehminuten entfernt.

Die Stadt Pulsnitz mit ca. 7.000 Einwohnern ist eine attraktive Kleinstadt im sächsischen Landkreis Bautzen. Die ausgesprochen schöne Stadt liegt ca. 34 km nordöstlich der Landeshauptstadt Dresden und ist verkehrsmäßig sehr gut erschlossen. Über die nahegelegenen Anschlussstellen der Autobahn A4 ist man in ca. 25 min in Dresden. Der Bahnhof Pulsnitz befindet sich in unmittelbarer Nähe mit Anschluss an den öffentlichen Personennahverkehr. Eine halbstündlich getaktete S-Bahn-Verbindung erreicht den Dresdner Hauptbahnhof in 30 Min. Pulsnitz besitzt mehrere Kindergärten, eine Grund- und Mittelschule sowie ein großes Naturbad. Gymnasien befinden sich in Großröhrsdorf (4 km) sowie Kamenz (12 km). Die Nähe zu Dresden prägt in jüngster Zeit die Region zu einem sich entwickelnden "Speckgürtel" der nahen Metropole. Gut gefüllte Gewerbegebiete im nahen Großröhrsdorf/ Bretnig, die städtischen Kliniken und die Großmolkerei von "Müller Milch" direkt an der Autobahnabfahrt Pulsnitz tragen ihr übriges dazu bei. Die Erweiterungen des "Silicon Saxony" im Dresdener Norden wirken bis nach Pulsnitz.

Ausstattung

Umfangreiche Sanierungs und Modernisierungsmaßnahmen wurden bereits nach 1990 und insbesondere ab 2009 durchgeführt. Sämtliche Dächer und deren Entwässerung sind saniert, gleiches gilt für Fassade und Fenster, letztere sind mit Aussenrolläden versehen. Sämtliche Wohn- und Gewerbebereiche verfügen über eine Zentralheizung. Für das Wohnhaus und die Praxis wurde 2004 im Keller ein Fröhling Holz-Vergaserkessel und ein Gaskessel installiert. Diese Heizanlage ist mit mehreren Schichtspeichern kombiniert (insgesamt 2.700 l), welche durch eine auf dem Dach befindliche Vaillant Solarthermie Anlage und die beiden Kessel gespeist werden. Die Erweitertungsfläche der Zahnarztpraxis (Radiatoren) und das Zahnlabor (Fußbodenheizung) besitzen eigene Gasthermen.