Wohnensemble in der Lausitz

 Ich habe die Datenschutzerklärung zur Kenntnis genommen und bin damit einverstanden, dass meine Daten zur Bearbeitung meiner Anfrage sowie zur Kontaktaufnahme gespeichert und verarbeitet werden.

Objektdetails

Objekt-ID:3935
Objektart:Einfamilienhaus
Lage:01920 Elstra
Wohnfläche ca.:305,00 m²
Nutzfläche ca.:335,00 m²
Grundstücksfläche ca.:8.000,00 m²
Zimmer:5
Käuferprovision:3,57 % zzgl. gesetzl. MwSt.
Kaufpreis:1.250.000,00 €

Objektbeschreibung

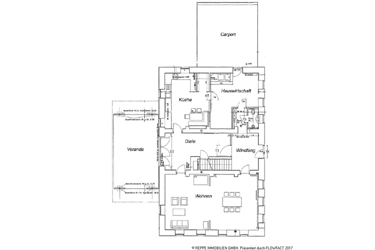
Zum Verkauf steht ein einmaliges Wohnensemble in wunderbar ruhiger Wohnlage. Das großzügige Gelände umfasst ca. 8.000 m² Fläche und verfügt über zwei Zufahrten. Bebaut ist es mit einem zweigeschossigen Wohnhaus und einem Nebengebäude mit Garagen, Werkstatt und Lagerflächen. Das Haus bietet ca. 305 m² Wohnfläche und zusätzlich eine ausgesprochen großzügige überdachte Terrasse in Südausrichtung. Am Rande der Terrassenfläche befindet sich ein rustikales Saunahaus. Im Nebengebäude ist die Heizzentrale mit einer leistungsstarken Holzheizung und dazugehörigen Pufferspeichern untergebracht. Weiterhin befinden sich hier Garagen und Werkstattbereiche, sämtlichst beheizt und mit automatischen Toren versehen. Am Haus wurde ein großzügiger Carport errichtet, welcher direkt über die Haustür zum Wirtschaftsraum des Hauses verbunden ist. Das leicht hangige Gelände verfügt über einen herrlichen Bestand an Obstgehölzen und rundet damit das Gefühl vom ländlich-modernen Wohnen ab.

Lage

Der Ortsteil Ossel mit seinen 38 Einwohnern gehörte ursprünglich zum "Ländchen Wohla", welches sich aus den Weilern Ossel, Dobrig, Talpenberg, Boderitz, Welka und den Rittergütern Wohla und Rehnsdorf zusammensetzte. Die Dörfer schmiegen sich am Fuße vom Schwarzenberg, Kälberberg und Wohlaer Berg. Im Jahre 1950 wurden die Orte von der Stadt Elstra eingemeindet. Elstra selbst erhielt das Stadtrecht bereits 1381 und gehört zu den kleinsten Städten Deutschlands. Trotz der vermeintlichen Abgeschiedenheit erreicht man die A4 über die Anschlussstelle Burkau mit dem PKW in ca. 7 Minuten. Bautzen ist von hier aus in rund 20 Minuten, Dresden-Klotzsche in etwa 25 Minuten erreichbar. Bis Elstra sind es 2 km, bis Kamenz 9 km und bis Pulsnitz 11 km. Die Stadt Elstra zeichnet sich durch ihre ruhige, ländliche Atmosphäre aus und verfügt über eine gute Grundversorgung sowie eine solide Infrastruktur. In Elstra gibt es niedergelassene Allgemeinmediziner und Fachärzte sowie eine Apotheke. Krankenhäuser befinden sich in der nahegelegenen Stadt Kamenz und in Bautzen. Einen Supermarkt gibt es direkt im Ort, größere Einkaufszentren sind in den umliegenden Städten erreichbar. Elstra verfügt über eine Grundschule, einen Kindergarten und eine Oberschule. Weiterführend Schulen befinden sich in Kamenz, Bautzen und Bischofswerda.

Ausstattung

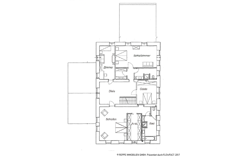
Durch eine aufwändige Sanierung gelang es den Eigentümern eine entspannte, großzügige und helle Wohnatmosphäre in diesem historischen Gebäude herzustellen. Sämtliche Wohnbereiche sind geschmackvoll gestaltet und in einem perfekten baulichen Zustand erhalten. Holz-Sprossenfenster, Parkettböden, schöne historische Öfen seien hier genannt. Der Wohnbereich im Erdgeschoß ist über die Diele mit der großen Küche und dem sich anschließenden Wirtschaftsbereich verbunden. Die Außenverglasung der Diele nach Süden lässt einen fließenden Übergang zur Verandafläche zu. Das Haus verfügt im Obergeschoß über drei Zimmer, ein Gästebad, eine Diele sowie ein Schlafzimmer mit Ankleide und Masterbad. Im rustikalen Granitkeller kann Wein gelagert werden. Die Wasserversorgung des Gartens erfolgt über einen eigenen Brunnen. Die Heizung des gesamten Hauses und des Nebengebäudes erfolgt über eine entsprechend groß dimensionierte Holzheizung mit Pufferspeichern. Zusätzlich existiert eine Gastherme, so daß auch bei Abwesenheit die Beheizung gesichert ist. Die Außenanlagen wurden sehr hochwertig und liebevoll angelegt und hergestellt. Insbesondere sind die in Handarbeit gemauerten Granit-Trockewände zu erwähnen.